Hjem Prosjekter HOME

HOME

Ingrid Jordheim
Ingrid Jordheim
år
2019
lærere
Anders Rubing
sted
Oslo, Norway

An investigation in housing

-From market based commodities to improving the quality of life

Photo from the exhibition _The situation of Today _ The mechanisms behind the housing development

Today, too many dwellings are being built with too low quality. In the first part of my diploma I try to get an overview and an understanding of the housing development in Norway.  Eight out of ten Norwegians own their own home, and investing in a house is for many the largest investment they do in a lifetime. Still, a dwelling is a commodity where the developer in most cases control the final product and buyer has next to nothing to say.  In this developer controlled market, the quality of the final product is being challenged, and more and more dwellings are being made of poorer quality than before (1980).

At the same time as the quality of the dwellings are going down, in January, this year, (10.01.2019) the Norwegian government came with a report, made by Institutt for samfunnsforskning, where they state that: The home you live in, its placement and the surrounding living environment affects many important aspects of your everyday life.

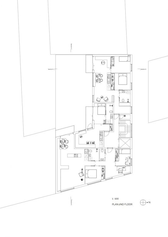
In the second part of my diploma I wish to take part in the ongoing discussion, concerning the quality in housing, and how the industry is controlling and dictating the marked. Through my final design project I have looked into quality aspects I believe are important in a dwelling and designed dwellings that have the quality aspects I believe are being neglected today. I believe that a dwelling with thought through qualities will increase peoples quality of life.peoples quality of life.

project