Hjem Prosjekter Patchwork

Patchwork

Vilje Valland
Vilje Valland
år
2023
lærere
Cristian Ștefănescu
Jan Liesegang
sted
Gaupås, Bergen, Norway

Exploring the spatial and social potential of an abandoned farm in Gaupås

My project deals with the many farmers and farms that have lost their relevance today. Through the  focus on one specific farm, situated on the West Coast of Norway. In the small village Gaupås, a farm landscape between Åsane and Ytre Arna, only 20 minutes outside Bergen city.

In the 18th century most Norwegians lived in rural areas. Nine out of ten were farmers, and most of them lived in klyngetun. Between 1850 and 1920, klyngetunet disappeared as a result of hamskiftet. The new individual yards became introverted resulting in a private family sphere losing the old «village community».  Today there are around 30,000 empty farms in Norway. Researchers believe that there are two factors threatening Norwegian agricultural resources the most.

  • That Norway has neglected our agricultural soil in favor of industrial development.
  • That less and less people are choosing the life of a farmer.

    What could we do with all the 30 000 empty farms around the country?

The reason this farm is relevant, is the fact that it is not relevant anymore, socially or functionally. The aim is to turn this fallen farm into a place for farmers to meet and share their resources, transformed with the materials found locally. Connecting several farm buildings as well connecting the surrounding farms and families, using patchwork as both a social and tectonic method. 

If agriculture gets more attractive as a way of living and more people start to participate in farming, I believe we will value the farmers’ contribution and food production better. 

They have the potential to be many things. What I suggest is just one example of how it spatially can be played with and socially to connect and strengthen a local farm community. 
My project deals with the many farmers and farms that have lost their relevance today. Through the  focus on one specific farm, situated on the West Coast of Norway. In the small village Gaupås, a farm landscape between Åsane and Ytre Arna, only 20 minutes outside Bergen city.

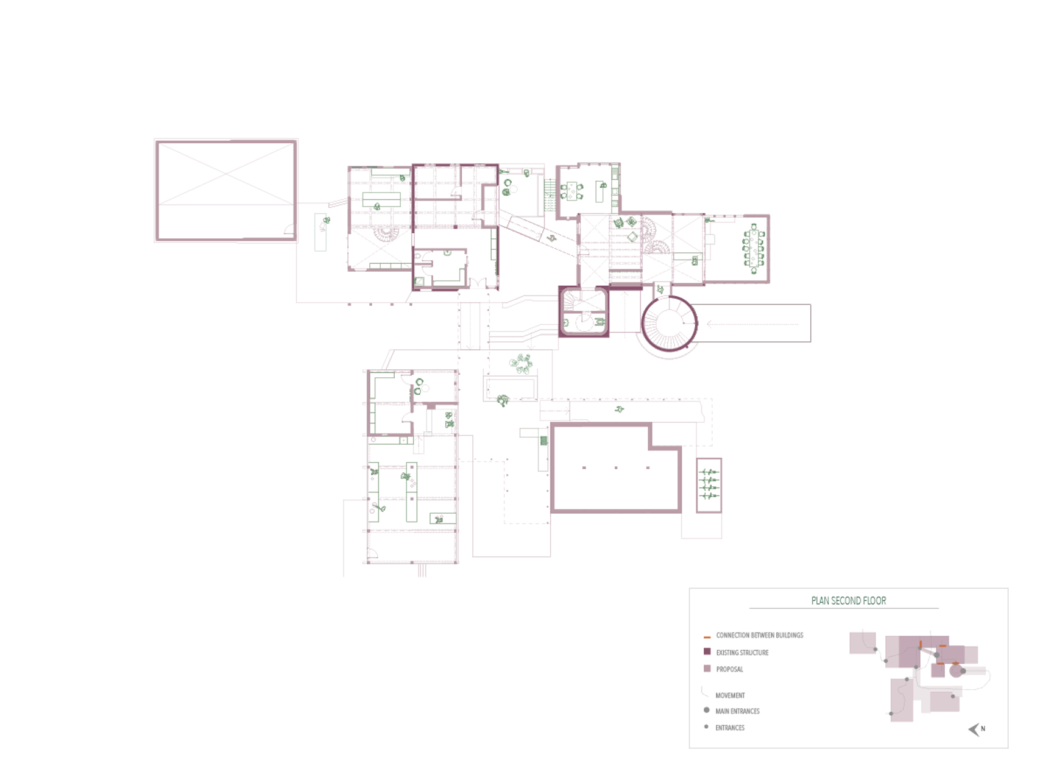
The reason this farm is relevant for this project, is the fact that it is not relevant anymore, socially, or functionally.  The farm, consisting of one house and a collection of five farm buildings, was originally a sheep farm, before it later became a cattle farm. Lasting until the beginning of the 2000th. Today only one woman lives there, in “nyehuset” on the neighbor’s plot. Her son who inherited the farm lives in Oslo. She was ashamed by the condition of the buildings, and could not understand my fascination with them. I am proposing to transform the site into cooperative ownership and meeting space with small scale agriculture for the village. 

The aim is to turn this fallen farm into a social place for farmers to meet and share resources, transformed with the materials found locally. Creating a bond between nearby farms and households through the visibility and distribution of local products and the use of the existing resources of the local farms in Gaupås. 

Highlighting the value of farmer’s work in the needed shift of  attitude towards the use of our local resources. The project connects topics such as loneliness, sharing, local production and transformation with reused materials. Sharing of resources, time and space can give the farmers more visibility, relevance, freedom, flexibility, and economic safety. 

Most of the transformation is done through the reuse of the existing building mass, the leftover materials lay around the site and reused material found within a radius of 10 km around the site. Transforming the buildings with the local resources and construction waste. The added material is used to patch the buildings together in different ways according to the existing situation, available material and program. Changing their use and giving them more space and more light. Introducing new transitions and movements within and around the buildings. 

Originally, the farm buildings are connected through their exterior, but not through movements and openings. I want to challenge this. In a way transforming five buildings into one. The project connects the buildings as well as the surrounding farms, using patchwork as both a social and tectonic method.

project