Hjem Prosjekter The Pillars, the Curtain and the Platform

The Pillars, the Curtain and the Platform

Matilde Cutler van den Heuvel
Matilde Cutler van den Heuvel
år
2024
lærere
Cristian Ștefănescu
Vibeke Jensen
sted
Under Puddefjordsbroen, Møhlenpris, Bergen
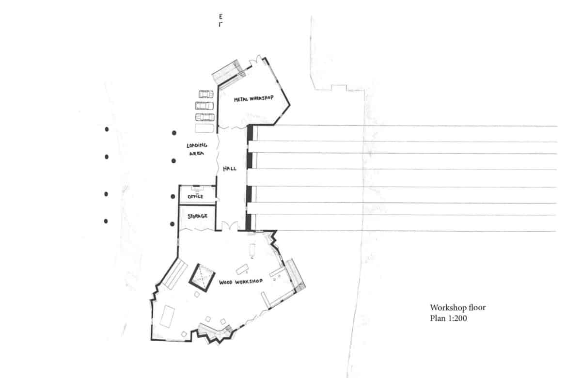
  • The Performing Arts School under the Bridge

 

“The Pillars, the Curtain, and the Platform ’’ proposes a new creative educational institution in Bergen, The Performing Arts School under the Bridge. The project offers a central platform for education in acting, dance, performance, light and sound design, scenography, costume design, and stage production. The design idea for the school is based on the concept of the unfinished institution, where space and program is in a state of flux. Based on the times of the year and days, at the start of a project or at the end, the different activities of the school expand and retract into different rooms and buildings. It is a school based on the process of collaboration, where ideas can be explored and tried out in all parts of the space.

In my project I want to highlight qualities happening behind the scenes. To see the building as a space that values the process of performing arts, as a centre point for community and discussions. Taking inspiration from the essay “Kissing Architecture” by Sylvia Lavin, the project explores the boundaries between performing arts and architecture. The project discusses how architecture can support and encourage creativity and identity in an educational environment, closely working with the ideas of scenography to envision the school as a dynamic, evolving space.

The result is the transformation of the neglected urban space under Puddefjordsbroen, Møhlenpris, where the continuous activity of the school gives a new relation to the area. The school blurs the boundaries between passers-by and the school’s inner life, inviting people to look into the activity of the backstage: production, rehearsals and performances. The Performing Arts School under Puddefjordsbroen offers a new life that occurs between the structures of the pillars, curtains and platforms.

Concept 

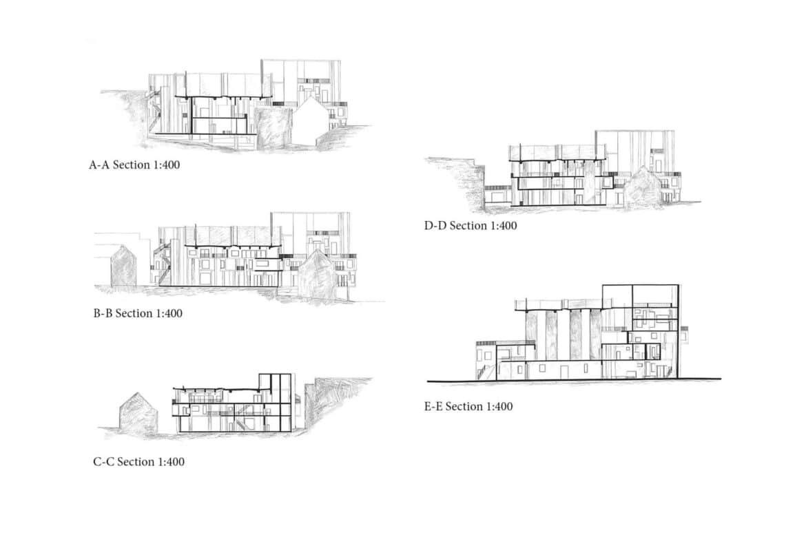
Between the folds of the red ”curtain walls”, rooms stacked on top of each other peek through. Each of them tells the story of a school in action. The ever-evolving streams of ideas, turning into movement, dance, and spatial exploration. Constantly in a state of chaotic activity under the roof of the bridge. A space flowing between the rhythm of concrete pillars, creating a different situation around every corner.

From far away, it is a curious sight, red walls reaching up over the bridge, touching each of the sides. Moving up close, windows in all various sizes and heights show the different actions of life inside. Through one window students are unloading wooden panels into the workshop. In the room above someone has just finished painting a fabric and has opened the folded door to a balcony, looking down at the people walking by. Through the window the concrete of the pillars is only just visible. Moving further along there is a staircase going up. At the end of the steps the landing broadens, transforming into a platform between pillars, red folded walls and wooden stacked boxes that reach all the way up to the underside of the bridge. Each box, window and balcony frames a new situation and view. Towards the water, the untouched structure of the bridge goes all the way to the other side.

Further inwards, the pillars are hidden and revealed, pushing through floors and rooms, appearing in the different windows along the path to the city. Here, two buildings create a small passageway, open up towards the concrete sealing of the bridge. The view is broken only by smaller bridges reaching across from room to room, connecting different activities. In the building on the right someone practises a dance number, and further along students practising lines are gathered. On the other side, a teacher holds a lecture to a group of students, and in the room above someone has just finished their work for the day, turning off the lights.

At the end of the passage a cyclist crosses the school, quickly glancing through a window at someone rigging lights. Turning towards the streets of Møhlenpris, a staircase to the top of the bridge appears. At each landing there is a different view, each step bringing the underside of the bridge closer. Looking down one of the streets past the housing of Møhlenpris, Cornerteateret appears in the distance.

project