Hjem Prosjekter The Urban Institute

The Urban Institute

Emma Træland & Petter Lysgaard
Emma Træland & Petter Lysgaard
år
2024
sted
Lagmannsholmen, Kristiansand, Norway
  • Reserving Lagmannsholmens potentials for future development

In the south of Norway in Kristiansand lies a former island called Lagmannsholmen that has been change by heavy landfills over time. The previous use of Lagmannsholmen was to host an ammunition house. Today the island is physically connected to the city but has a barrier of containers and fences that disconnects the site from the public. The area hosts a container port, shipping logistics and a cruise dock. Whitc is going to be relocated in the future and Lagmannsholmen is going to be accessible for the city for the first time. There are important discussions between the municipality, developers and city planners of how Lagmannsholmen could be a thriving part of the city in the future.

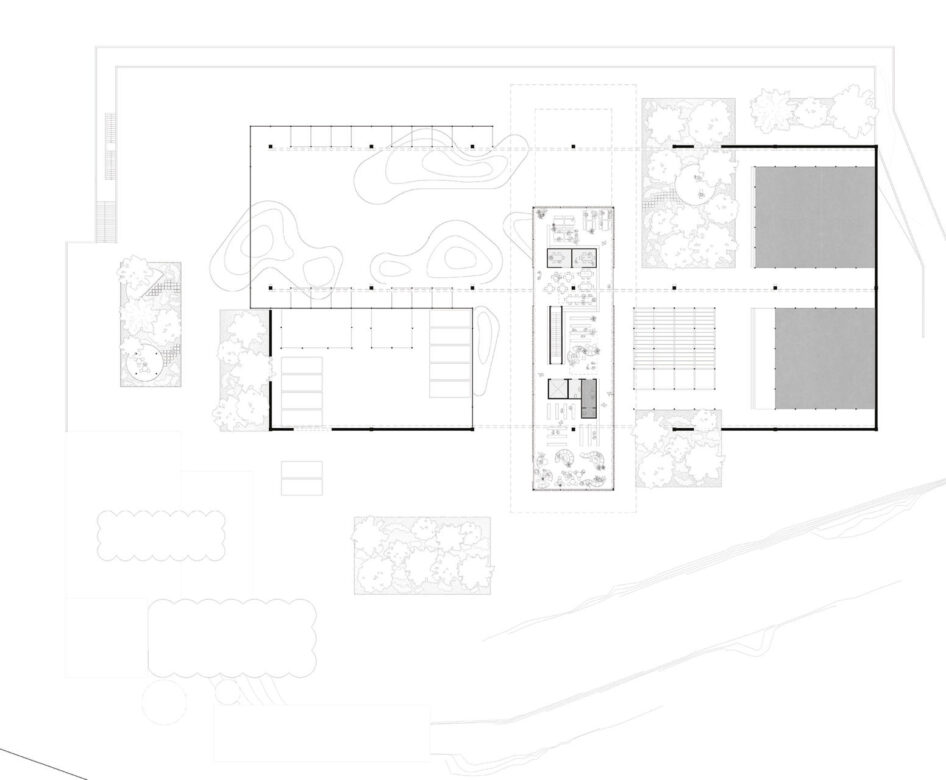
The Urban Institute is a transformation project at Lagmannsholmen located at the plateau. Where we are reserving the area in an act to preserve the site for future development done by a diverse group of smaller local actors. So that The Urban Institute becomes a place to rely on and a place where you feel a sense of belonging during the development phases. After getting to know the situation in Kristiansand it is clear that the there is a need fora low threshold urban public space where one can be a visitor and not only a customer. The Urban Institute is a proposal for this need for the city and future neighbourhoods at Lagmannsholmen.The unique identity of Lagmannsholmen of being “the other” within the city is something that we want to keep as a quality for the site. By keeping the existing framework, the new spaces will have new identity and character while preserving the heritage of the site.

project